Skip To Content

7355 E Quincy Ave , #107

Denver, CO 80237
  • $170,000
  • STATUS: Closed
  • ON SITE: 376 Days
  • MLS #: R5974884
Sold - 03/14/2025
$170,000
SOLD - 03/14/2025
  • 2
    BEDS
  • N/A
    ACRES
  • 2
    BATHS
  • 0
    1/2 BATHS
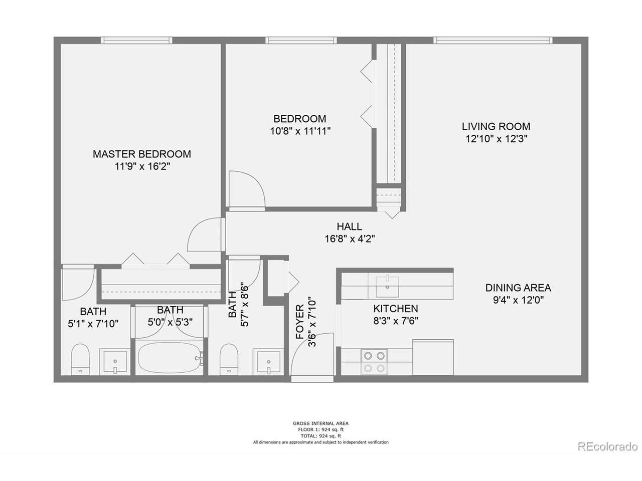
  • 967
    SQFT
  • $0
    $/SQFT
Neighborhood:
Type:
Condo
Built:
1971
County:

School Information

Elementary School:
Middle School:
High School:
School District:

Description

Price Improvement! Welcome home to this move-in-ready 2 bed/2 bath condo nestled near the Denver Tech Center (DTC) and city parks. The custom electric fireplace adds a touch of elegance and coziness. The renovated kitchen is equipped with newer stainless steel appliances, a deep single-bowl sink, and quartz countertops. The primary bedroom offers a beautifully remodeled ensuite bathroom, a generously sized closet, and ample storage space. Reserve your spot with Carport #338, adding convenience to your daily routine. With newer paint throughout, updated fixtures, and elegant baseboards, every detail has been thoughtfully considered. The Homeowners Association (HOA) includes the convenience of heat, air conditioning, and water, simplifying your utility payments to just electricity (~$25/month). A storage unit is conveniently located in the laundry room, just across the hall. In addition to its stunning interior, this community offers an array of amenities. Stay active and maintain your fitness goals at the well-equipped fitness center. Conveniently situated near parks, the Denver Tech Center, Light Rail, Cherry Creek Reservoir, grocery stores, dining establishments, and Interstate access, this location provides unparalleled convenience and endless possibilities. Don't miss the opportunity to make this stunning condo your own. Embrace a lifestyle of comfort, luxury, and convenience. Schedule your showing today and prepare to fall in love with this exceptional condominium.

Monthly Payment Calculator



© 2025 Information and Real Estate Services, LLC. IDX information is provided exclusively for consumers' personal, non-commercial use and may not be used for any purpose other than to identify prospective properties consumers may be interested in purchasing. Information is deemed reliable but is not guaranteed accurate by the MLS or EXP Realty. Data last updated: 2025-11-17T23:43:55.697.

Information source: Information and Real Estate Services, LLC. Provided for limited non-commercial use only under IRES Rules © Copyright IRES.
www.findyournocohome.com/homes/157596603
Print Image

7355 E Quincy Ave , #107 Denver, CO 80237

  • Price: $175,000
  • Status: Closed
  • On Site: 376 Days
  • Updated: 167 min ago
  • MLS #: R5974884
2
Beds
2
Baths
0
½ Baths
N/A
Acres
967
SQFT
$0
$/SQFT
1971
Built
Neighborhood:
Whispering Pines West
County:
Denver
Area:
12 Denver Metro area
Elementary School:
Southmoor
Middle School:
Hamilton
High School:
Thomas Jefferson
School District:
Denver District 1
Property Description
Price Improvement! Welcome home to this move-in-ready 2 bed/2 bath condo nestled near the Denver Tech Center (DTC) and city parks. The custom electric fireplace adds a touch of elegance and coziness. The renovated kitchen is equipped with newer stainless steel appliances, a deep single-bowl sink, and quartz countertops. The primary bedroom offers a beautifully remodeled ensuite bathroom, a generously sized closet, and ample storage space. Reserve your spot with Carport #338, adding convenience to your daily routine. With newer paint throughout, updated fixtures, and elegant baseboards, every detail has been thoughtfully considered. The Homeowners Association (HOA) includes the convenience of heat, air conditioning, and water, simplifying your utility payments to just electricity (~$25/month). A storage unit is conveniently located in the laundry room, just across the hall. In addition to its stunning interior, this community offers an array of amenities. Stay active and maintain your fitness goals at the well-equipped fitness center. Conveniently situated near parks, the Denver Tech Center, Light Rail, Cherry Creek Reservoir, grocery stores, dining establishments, and Interstate access, this location provides unparalleled convenience and endless possibilities. Don't miss the opportunity to make this stunning condo your own. Embrace a lifestyle of comfort, luxury, and convenience. Schedule your showing today and prepare to fall in love with this exceptional condominium.
Exterior Features

Attached Garage YN No Construction Materials Wood/FrameBrick/Brick Veneer Covered Spaces 1 Exterior Features Tennis Court(s) Garage Type Carport Garage YN Yes Horse YN No Levels Three Or More Other Structures Kennel/Dog Run Property Attached YN Yes Road Surface Type Paved Roof Composition Spa YN No Structure Type Condo Waterfront YN No

Interior Features

Above Grade Finished Area 967 Appliances DishwasherMicrowaveDisposal Basement Crawl SpaceRadon Test Available Bathrooms Full 1 Bathrooms Half 1 Bedroom2 Level Main Building Area Total 967 Cooling Central AirCeiling Fan(s) Cooling YN Yes Dining Room Level Main Fireplace Features Living RoomSingle Fireplace Fireplace YN Yes Heating Forced Air Heating YN Yes Interior Features Pantry Kitchen Level Main Laundry Features Common Area Living Area 967 Living Area Source Assessor Living Room Level Main Master Bedroom Level Main

Property Features

Association Fee 547 Association Fee Frequency Monthly Association Fee Includes TrashSnow RemovalMaintenance StructureWater/SewerHeatHazard Insurance Association YN Yes Community Features ClubhouseTennis Court(s)PoolExtra Storage Crops None Exclusions SELLERS PERSONAL PROPERTY Has Association Fee Yes Has Hoa Covenants Yes Has Hoa2 No Has Water Rights No Listing Sub Status None Listing Terms CashConventional Locale Denver New Construction YN No Property Condition Not NewPreviously Owned Property Sub Type Attached Dwelling Senior Community YN No Sewer City SewerPublic Sewer Special Listing Conditions Private Owner Tax Annual Amount 876 Tax Year 2022 Water Source City Water Zoning R-2-A

Listing information © 2025 Information and Real Estate Services
Listing provided courtesy of Donna Underwood of HomeSmart: 720-775-7471.



© 2025 Information and Real Estate Services, LLC. IDX information is provided exclusively for consumers' personal, non-commercial use and may not be used for any purpose other than to identify prospective properties consumers may be interested in purchasing. Information is deemed reliable but is not guaranteed accurate by the MLS or EXP Realty. Data last updated: 2025-11-17T23:43:55.697.

Information source: Information and Real Estate Services, LLC. Provided for limited non-commercial use only under IRES Rules © Copyright IRES.
 
https://bt-photos.global.ssl.fastly.net/ires/1280_boomver_1_401917935-2.jpg https://bt-photos.global.ssl.fastly.net/ires/1280_boomver_1_401917935-2.jpg https://bt-photos.global.ssl.fastly.net/ires/1280_boomver_1_401917935-2.jpg
Logo
EXP Realty
500 Whitcomb Street
Fort Collins CO, 80521