Skip To Content

5010 Hunt Lot #21 Cir

Elizabeth, CO 80107
  • $200,000
  • STATUS: Active
  • ON SITE: 454 Days
  • MLS #: 8371784
UPDATED: 63 min ago
$200,000
  • 0
    BEDS
  • 1.18
    ACRES
  • 0
    BATHS
  • 0
    1/2 BATHS
Neighborhood:
Type:
Vacant Land / Lots
County:
Area:

School Ratings & Info

School District:

Description

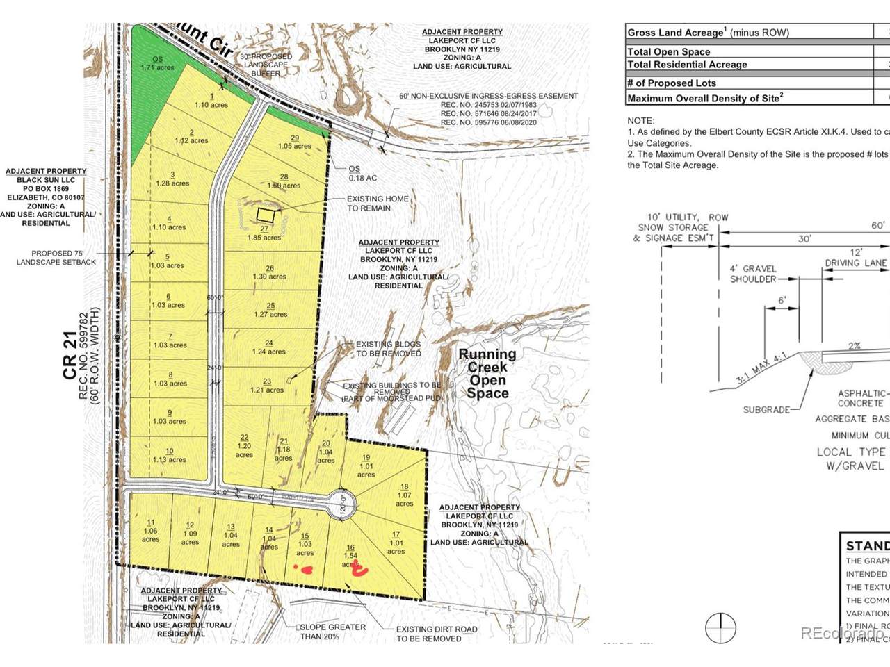
THIS IS WHAT YOU HAVE BEEN WAITING FOR! Nestled in the outskirts of this charming rural town, this expansive piece of land offers a serene escape from the hustle and bustle of city life. Spanning approximately 1+ acres, the property is gently sloping, providing picturesque views of the surrounding landscape and a perfect canvas for your dream home. Lush greenery blankets the area, and a meandering stream runs along one edge of the property, enhancing the tranquil ambiance and offering opportunities for outdoor enjoyment. The land is easily accessible via a well-maintained road, with utilities such as electricity, gas, and water conveniently available on each lot! This prime location allows for creativity in design, whether you envision a modern farmhouse, a cozy cottage, or a luxurious retreat. With ample space for landscaping or even a small garden, this piece of land is a rare find for anyone looking to build their ideal haven. Embrace the peaceful lifestyle and the beauty of nature as you create an extraordinary living space tailored to your needs. Did I mention no HOA?! Just a 5-minute drive to Spring Valley Golf Club, close to shopping, restaurants, and entertainment. DON'T MISS OUT! Please contact my preferred land lender Braden Cooper for any of your lending needs or questions at 719.761.1337 braden.cooper@thestocksmensbank.com Lot #21 1.18

Monthly Payment Calculator



© 2026 Information and Real Estate Services, LLC. IDX information is provided exclusively for consumers' personal, non-commercial use and may not be used for any purpose other than to identify prospective properties consumers may be interested in purchasing. Information is deemed reliable but is not guaranteed accurate by the MLS or EXP Realty. Data last updated: 2026-02-06T18:43:57.83.

Information source: Information and Real Estate Services, LLC. Provided for limited non-commercial use only under IRES Rules © Copyright IRES.
www.findyournocohome.com/homes/157697639
Print Image

5010 Hunt Lot #21 Cir Elizabeth, CO 80107

  • Price: $200,000
  • Status: Active
  • On Site: 454 Days
  • Updated: 63 min ago
  • MLS #: 8371784
0
Beds
0
Baths
0
½ Baths
1.18
Acres
Neighborhood:
Hillside Estates
County:
Elbert
Area:
Metro Denver
School District:
Elizabeth C-1
Property Description
THIS IS WHAT YOU HAVE BEEN WAITING FOR! Nestled in the outskirts of this charming rural town, this expansive piece of land offers a serene escape from the hustle and bustle of city life. Spanning approximately 1+ acres, the property is gently sloping, providing picturesque views of the surrounding landscape and a perfect canvas for your dream home. Lush greenery blankets the area, and a meandering stream runs along one edge of the property, enhancing the tranquil ambiance and offering opportunities for outdoor enjoyment. The land is easily accessible via a well-maintained road, with utilities such as electricity, gas, and water conveniently available on each lot! This prime location allows for creativity in design, whether you envision a modern farmhouse, a cozy cottage, or a luxurious retreat. With ample space for landscaping or even a small garden, this piece of land is a rare find for anyone looking to build their ideal haven. Embrace the peaceful lifestyle and the beauty of nature as you create an extraordinary living space tailored to your needs. Did I mention no HOA?! Just a 5-minute drive to Spring Valley Golf Club, close to shopping, restaurants, and entertainment. DON'T MISS OUT! Please contact my preferred land lender Braden Cooper for any of your lending needs or questions at 719.761.1337 braden.cooper@thestocksmensbank.com Lot #21 1.18
Exterior Features

Garage Type None Waterfront YN No

Interior Features

Baths Full Additional 0 Baths Full Basement 0 Baths Full Lower 0 Baths Full Main 0 Baths Full Upper 0 Baths Half Additional 0 Baths Half Basement 0 Baths Half Lower 0 Baths Half Main 0 Baths Half Upper 0 Baths Three Quarters Additional 0 Baths Three Quarters Basement 0 Baths Three Quarters Lower 0 Baths Three Quarters Main 0 Baths Three Quarters Upper 0

Property Features

Association YN No Crops None Exclusions N/A Has Metro Tax District No Has Water Rights No Listing Terms CashConventionalVA Lot Features Paved MLSArea Minor Metro25/DEP New Construction Status Not NewPreviously Owned New Construction YN No Sewer Public Sewer Sewer Supplier Public Sewer Special Listing Conditions Private Owner Tax Annual Amount 2409 Tax Year 2023 Utilities Natural Gas AvailableElectricity Available Water Or Sewer Needed Sewer Tap Installed Water Source City Zoning A

Listing information © 2026 Information and Real Estate Services
Listing provided courtesy of Alissa Dunn of HomeSmart Realty: 303-641-1550.



© 2026 Information and Real Estate Services, LLC. IDX information is provided exclusively for consumers' personal, non-commercial use and may not be used for any purpose other than to identify prospective properties consumers may be interested in purchasing. Information is deemed reliable but is not guaranteed accurate by the MLS or EXP Realty. Data last updated: 2026-02-06T18:43:57.83.

Information source: Information and Real Estate Services, LLC. Provided for limited non-commercial use only under IRES Rules © Copyright IRES.
 
https://bt-photos.global.ssl.fastly.net/ires/1280_boomver_2_401918463-2.jpg https://bt-photos.global.ssl.fastly.net/ires/1280_boomver_2_401918463-2.jpg https://bt-photos.global.ssl.fastly.net/ires/1280_boomver_2_401918463-2.jpg
Logo
EXP Realty
500 Whitcomb Street
Fort Collins CO, 80521