Skip To Content

4855 N Zuni St

Denver, CO 80221
  • $299,000
  • STATUS: Active
  • ON SITE: 478 Days
  • MLS #: 9425405
Price Reduced
$299,000
  • 0
    BEDS
  • 0.14
    ACRES
  • 0
    BATHS
  • 0
    1/2 BATHS
Neighborhood:
Type:
Vacant Land / Lots
County:
Area:

School Ratings & Info

School District:

Description

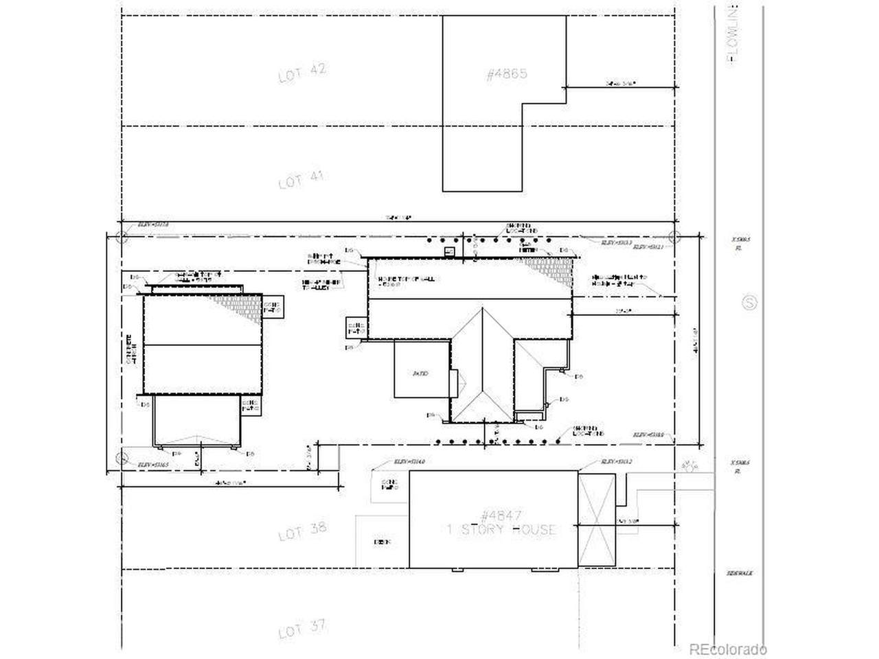
Attention Builders and Dreamers: Unleash Your Vision on This Prime Denver Lot! Own a piece of Denver's vibrant energy and build your dream home on this prime lot, it's ready for your personal touch. Jump start your project with: * Pre-existing architectural and structural plans (available for review with a bonafide offer): Save time and money with a solid foundation (city/county approval needed). * Detailed survey and soil report: Build with confidence, knowing the property's ins and outs (including property caisson report). * Prime location: Immerse yourself in the heart of Denver, with easy access to everything the city has to offer. * Site is ready for construction: Raw land (no structure removal needed). Utilities are at the Street/Ally. This is your chance to: * Craft your perfect living space, tailored to your unique needs and desires. * Escape the cookie-cutter mold and build a home that reflects your individuality. * Invest in Denver's booming real estate market and watch your equity soar. * Build a two story home for City and Mountain Views. Don't let this unique chance slip away! Contact us today to schedule a viewing and unlock the boundless potential of this prime Denver lot. We're also happy to connect you with a custom home builder LHI Development Group, one of Denver's premier builders, to help turn your vision into reality. Visit their website at www.lhi-int.com by using a preferred builder we are happy to discuss owner carry terms on the land to make your dream home a reality, easing your upfront costs along the way. Together, let's craft your perfect Denver haven. Please note: Architectural and structural plans require city/county approval before construction. Survey, soil, and caisson report available upon request. We look forward to hearing from you!

Monthly Payment Calculator



© 2026 Information and Real Estate Services, LLC. IDX information is provided exclusively for consumers' personal, non-commercial use and may not be used for any purpose other than to identify prospective properties consumers may be interested in purchasing. Information is deemed reliable but is not guaranteed accurate by the MLS or EXP Realty. Data last updated: 2026-02-15T23:43:18.693.

Information source: Information and Real Estate Services, LLC. Provided for limited non-commercial use only under IRES Rules © Copyright IRES.
www.findyournocohome.com/homes/157164743
Print Image

4855 N Zuni St Denver, CO 80221

  • Price: $299,000
  • Status: Active
  • On Site: 478 Days
  • MLS #: 9425405
0
Beds
0
Baths
0
½ Baths
0.14
Acres
Neighborhood:
East Berkeley
County:
Denver
Area:
Metro Denver
School District:
Denver District 1
Property Description
Attention Builders and Dreamers: Unleash Your Vision on This Prime Denver Lot! Own a piece of Denver's vibrant energy and build your dream home on this prime lot, it's ready for your personal touch. Jump start your project with: * Pre-existing architectural and structural plans (available for review with a bonafide offer): Save time and money with a solid foundation (city/county approval needed). * Detailed survey and soil report: Build with confidence, knowing the property's ins and outs (including property caisson report). * Prime location: Immerse yourself in the heart of Denver, with easy access to everything the city has to offer. * Site is ready for construction: Raw land (no structure removal needed). Utilities are at the Street/Ally. This is your chance to: * Craft your perfect living space, tailored to your unique needs and desires. * Escape the cookie-cutter mold and build a home that reflects your individuality. * Invest in Denver's booming real estate market and watch your equity soar. * Build a two story home for City and Mountain Views. Don't let this unique chance slip away! Contact us today to schedule a viewing and unlock the boundless potential of this prime Denver lot. We're also happy to connect you with a custom home builder LHI Development Group, one of Denver's premier builders, to help turn your vision into reality. Visit their website at www.lhi-int.com by using a preferred builder we are happy to discuss owner carry terms on the land to make your dream home a reality, easing your upfront costs along the way. Together, let's craft your perfect Denver haven. Please note: Architectural and structural plans require city/county approval before construction. Survey, soil, and caisson report available upon request. We look forward to hearing from you!
Exterior Features

Garage Type None Parking Features None View Mountain(s)City Waterfront YN No

Interior Features

Baths Full Additional 0 Baths Full Basement 0 Baths Full Lower 0 Baths Full Main 0 Baths Full Upper 0 Baths Half Additional 0 Baths Half Basement 0 Baths Half Lower 0 Baths Half Main 0 Baths Half Upper 0 Baths Three Quarters Additional 0 Baths Three Quarters Basement 0 Baths Three Quarters Lower 0 Baths Three Quarters Main 0 Baths Three Quarters Upper 0

Property Features

Association YN No Crops None Exclusions None Fencing Partial Has Metro Tax District No Has Water Rights No Listing Terms CashConventional Lot Features LevelPaved MLSArea Minor Metro12/DNW New Construction Status Not NewPreviously Owned New Construction YN No Sewer Public Sewer Sewer Supplier Public Sewer Tax Annual Amount 0 Tax Year 2022 Utilities Natural Gas AvailableElectricity AvailableCable Available Water Source City Zoning E-SU-DX

Listing information © 2026 Information and Real Estate Services
Listing provided courtesy of Dirk Nygaard of Signature Real Estate Corp.: dirk@REsignature.com,303-809-8347.



© 2026 Information and Real Estate Services, LLC. IDX information is provided exclusively for consumers' personal, non-commercial use and may not be used for any purpose other than to identify prospective properties consumers may be interested in purchasing. Information is deemed reliable but is not guaranteed accurate by the MLS or EXP Realty. Data last updated: 2026-02-15T23:43:18.693.

Information source: Information and Real Estate Services, LLC. Provided for limited non-commercial use only under IRES Rules © Copyright IRES.
 
https://bt-photos.global.ssl.fastly.net/ires/1280_boomver_1_401916051-2.jpg https://bt-photos.global.ssl.fastly.net/ires/1280_boomver_1_401916051-2.jpg https://bt-photos.global.ssl.fastly.net/ires/1280_boomver_1_401916051-2.jpg
Logo
EXP Realty
500 Whitcomb Street
Fort Collins CO, 80521