Skip To Content

1757 W 34th Ave

Denver, CO 80211
  • $950,000
  • STATUS: Active
  • ON SITE: 53 Days
  • MLS #: 6489222
UPDATED: 52 min ago
$950,000
  • 0
    BEDS
  • 0.16
    ACRES
  • 0
    BATHS
  • 0
    1/2 BATHS
Neighborhood:
Type:
Vacant Land / Lots
County:
Area:

School Ratings & Info

School District:

Description

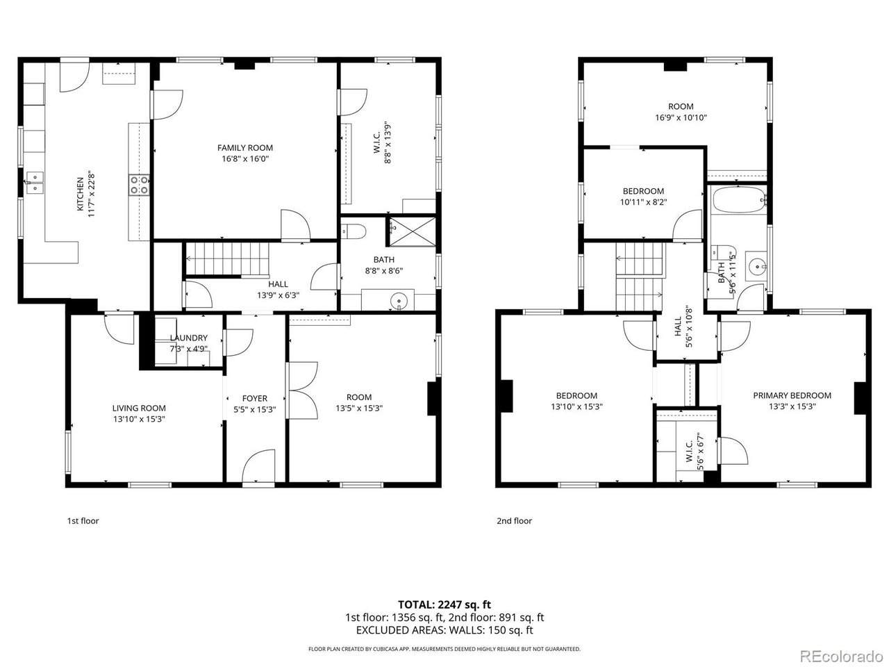
1757 W 34th Ave/3420 Quivas by appointment ONLY!!! Zoned U-TU-B Property is sold AS IS Call Peter (303)246-7383 Unique investment opportunity!! Corner double lot in highly sought after Lower Highland in Denver. (loHi) This lot has two separate dwellings. The 2-story main house facing 34th Ave has three bedrooms and two baths. It is structurally compromised and will eventually need to be rebuilt. The second home, formerly a grocery store, facing Quivas Street has been rented as a Corporate Housing unit. Most recently for $3150 a month. This two-bed, one-bath single-story home, approximately 1,000 sf has an open loft layout with a separate attached sun porch currently used as a second bedroom. (non conforming as it does not have a closet) Between both structures is a cobblestone-paved courtyard. The property has a relatively new three car garage accessible from the alley on Quivas Street and through the courtyard by foot. The legal address for both is 1757 W 34th Ave. While the back, former grocery store is named 3420 Quivas St on Google Maps, it is technically 1757 W 34th Ave #2. Currently both units are rented on a monthly basis. The main house is rented at $2600/month and the former grocery store is rented at $3150/month. This provides a total income of $5,750 a month for any investor while they determine changes and procure permits. All information, claims and statements regarding the use/zoning and potential improvement of this property must be verified by the interested party and are not guaranteed by the Seller/Listing Agent. Attached are floor plans of both units and photos of Quivas property only.

Monthly Payment Calculator



IRES logo

© 2026 Information and Real Estate Services, LLC. IDX information is provided exclusively for consumers' personal, non-commercial use and may not be used for any purpose other than to identify prospective properties consumers may be interested in purchasing. Information is deemed reliable but is not guaranteed accurate by the MLS or EXP Realty. Data last updated: 2026-04-20T23:44:05.333.

Information source: Information and Real Estate Services, LLC. Provided for limited non-commercial use only under IRES Rules © Copyright IRES.
www.findyournocohome.com/homes/173404682
Print Image

1757 W 34th Ave Denver, CO 80211

  • Price: $950,000
  • Status: Active
  • On Site: 53 Days
  • Updated: 52 min ago
  • MLS #: 6489222
0
Beds
0
Baths
0
½ Baths
0.16
Acres
Neighborhood:
Lower Highland (Lohi)
County:
Denver
Area:
Metro Denver
School District:
Denver District 1
Property Description
1757 W 34th Ave/3420 Quivas by appointment ONLY!!! Zoned U-TU-B Property is sold AS IS Call Peter (303)246-7383 Unique investment opportunity!! Corner double lot in highly sought after Lower Highland in Denver. (loHi) This lot has two separate dwellings. The 2-story main house facing 34th Ave has three bedrooms and two baths. It is structurally compromised and will eventually need to be rebuilt. The second home, formerly a grocery store, facing Quivas Street has been rented as a Corporate Housing unit. Most recently for $3150 a month. This two-bed, one-bath single-story home, approximately 1,000 sf has an open loft layout with a separate attached sun porch currently used as a second bedroom. (non conforming as it does not have a closet) Between both structures is a cobblestone-paved courtyard. The property has a relatively new three car garage accessible from the alley on Quivas Street and through the courtyard by foot. The legal address for both is 1757 W 34th Ave. While the back, former grocery store is named 3420 Quivas St on Google Maps, it is technically 1757 W 34th Ave #2. Currently both units are rented on a monthly basis. The main house is rented at $2600/month and the former grocery store is rented at $3150/month. This provides a total income of $5,750 a month for any investor while they determine changes and procure permits. All information, claims and statements regarding the use/zoning and potential improvement of this property must be verified by the interested party and are not guaranteed by the Seller/Listing Agent. Attached are floor plans of both units and photos of Quivas property only.
Exterior Features

Garage Type Attached Parking Features Attached Waterfront YN No

Interior Features

All Bedrooms Conform No Baths Full Additional 0 Baths Full Basement 0 Baths Full Lower 0 Baths Full Main 0 Baths Full Upper 0 Baths Half Additional 0 Baths Half Basement 0 Baths Half Lower 0 Baths Half Main 0 Baths Half Upper 0 Baths Three Quarters Additional 0 Baths Three Quarters Basement 0 Baths Three Quarters Lower 0 Baths Three Quarters Main 0 Baths Three Quarters Upper 0

Property Features

Association YN No Crops None Exclusions persona property Has Metro Tax District No Has Water Rights No Listing Terms Cash Lot Features Level MLSArea Minor Metro12/DNW New Construction Status Not NewPreviously Owned New Construction YN No Sewer Public Sewer Sewer Supplier Public Sewer Special Listing Conditions Other Owner Tax Annual Amount 8238 Tax Year 2024 Zoning U-TU-B

Listing information © 2026 Information and Real Estate Services
Listing provided courtesy of Peter Hecking of 8z Real Estate: 303-246-7383.



IRES logo

© 2026 Information and Real Estate Services, LLC. IDX information is provided exclusively for consumers' personal, non-commercial use and may not be used for any purpose other than to identify prospective properties consumers may be interested in purchasing. Information is deemed reliable but is not guaranteed accurate by the MLS or EXP Realty. Data last updated: 2026-04-20T23:44:05.333.

Information source: Information and Real Estate Services, LLC. Provided for limited non-commercial use only under IRES Rules © Copyright IRES.
 
https://bt-photos.global.ssl.fastly.net/ires/orig_boomver_1_6489222-2.jpg https://bt-photos.global.ssl.fastly.net/ires/orig_boomver_1_6489222-2.jpg https://bt-photos.global.ssl.fastly.net/ires/orig_boomver_1_6489222-2.jpg
Logo
EXP Realty
500 Whitcomb Street
Fort Collins CO, 80521